U gebruikt een verouderde internetbrowser.
We raden u aan om de meest recente internetbrowser te installeren voor de beste weergave van deze website.
Een internetbrowser die up to date is, staat ook garant voor veilig surfen.

Helaas, dit pand is verkocht

9750 Kruisem

Omschrijving

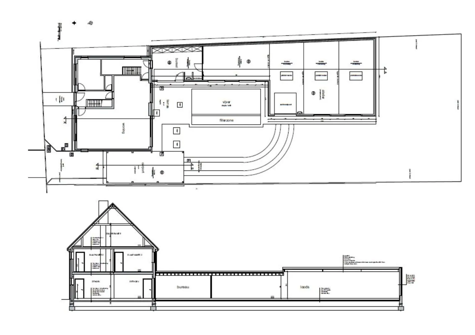
TOPPER: prachtige, moderne woning met magazijn
Deze gezellige, ruime woning met carport is gelegen op een gunstige plek in Kruisem, nabij belangrijke invalswegen (E17/N60).
De eigenaar die schrijnwerker is, liet een aantal jaren geleden een prachtig atelier bouwen om zijn ambacht te kunnen uitoefenen. Het atelier met bureauruimte is voorzien van een sectionale poort en gebouwd met dezelfde degelijkheid als die van een effectieve woning, heel goed geïsoleerd en met heel kwalitatieve materialen. Dit magazijn kan zich lenen tot het uitoefenen van allerlei zelfstandige activiteiten en biedt de perfecte work-life balans voor de kleine zelfstandige of hobbyist.
Je komt binnen in de woning via de hal met aan de linkerkant een aangenaam bureau waar je in alle rust kan werken. Rechts ga je naar de ruime, lichtrijke living met open, recente keuken en zicht op de zuidwest gerichte tuin en zwemvijver. Er is een ook een kelder en een bergruimte.
Op de eerste verdieping zijn er drie grote, praktische slaapkamers, allen voorzien van rechte muren. Vorig jaar werden twee kamers voorzien van ingemaakte kasten. Vanuit elke kamer heb je een prachtig verzicht. Je kan boven ook in alle rust genieten van een douche of bad in de recente badkamer voorzien van een dubbele lavabo en toilet.
Een vaste trap brengt je naar de tweede verdieping die als volwaardige leefruimte kan dienen. Hier is zeker de mogelijkheid om nog extra slaapkamers, hobbyruimte en/of bergruimte te creëren. In de nok van het dak is er via een uitschuifbare trap nog extra zolderruimte.
Wil je deze fantastische, energiezuinige woning met weids zicht graag bezoeken? Maak een afspraak met Maison R via 0479 368 349.


Niet gevonden wat u zocht? Schrijf u dan vrijblijvend in en blijf op de hoogte van ons recentste aanbod.
Op zoek?
Terug naar boven
Sluit menu Maison R